Nastavení cookies

"Cookies" jsou malé softwarové soubory, které nám umožňují ukládat informace ohledně vašeho zařízení a vás jako uživatele výhradně v době, kdy navštívíte některou z našich internetových stránek.

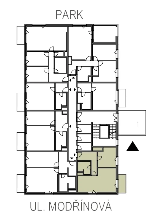
Byt B 4.7

57.67 m2

Celková plocha

2+kk

Dispozice

4.NP

Podlaží

B

Budova

  1. Chodba 9.56 m2
  2. Ložnice 13.11 m2
  3. Obývací pokoj + kuchyň 29.59 m2
  4. Koupelna 5.41 m2
  5. Sklepní kóje 2.56 m2
  6. Balkon 5.40 m2

6 195 064 Kč

Cena je včetně DPH bez garážového parkovacího stání

Chcete více informací?

Kontaktujte nás telefonicky +420 603 980 406
emailem info@modrinova.cz
nebo vyplňte formulář a my se vám ozveme.